Espace propriétaire
fr

Votre recherche

Coup de coeur
Port-Vendres (66660)

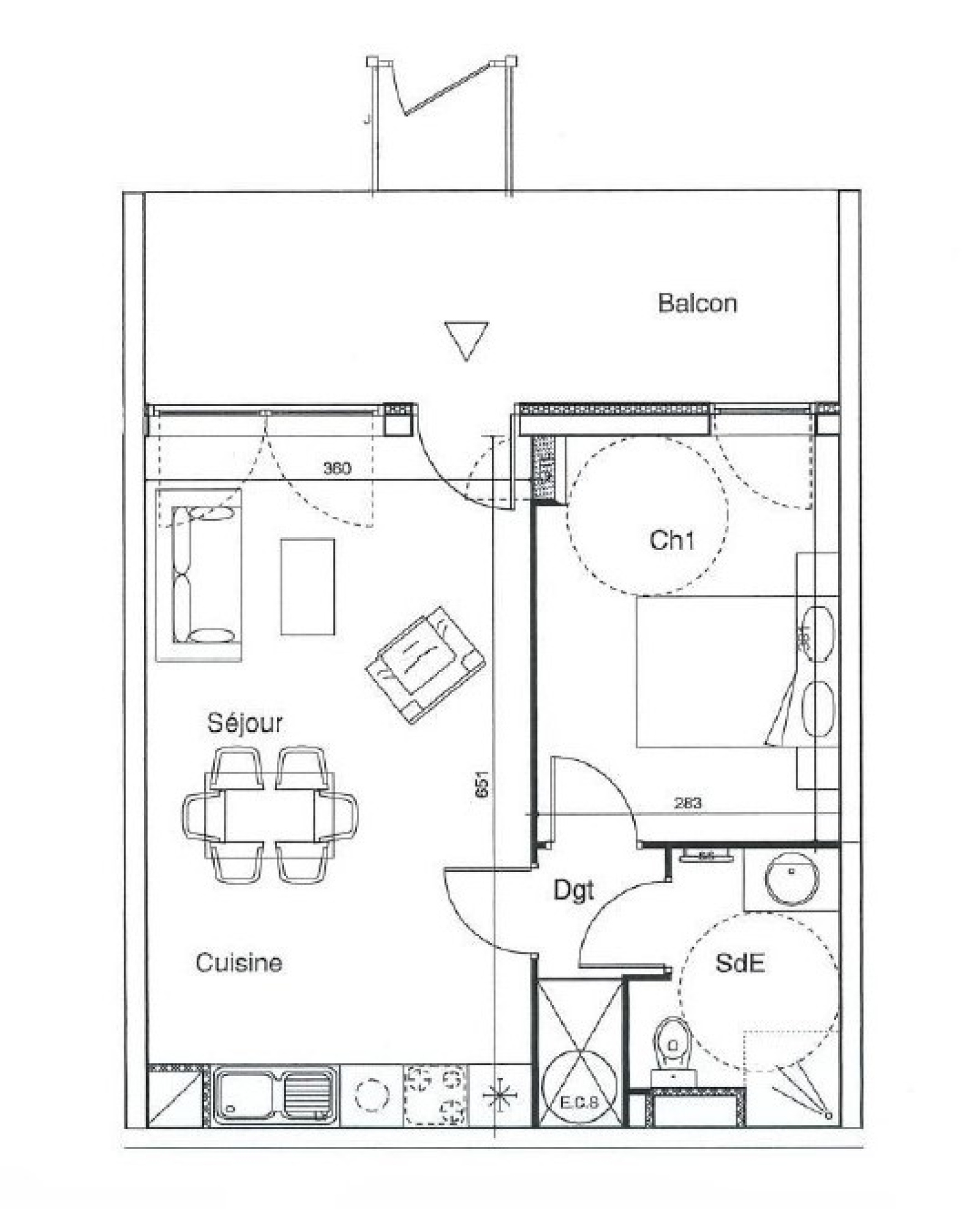
2 pièces - 40 m²

A PORT-VENDRES, UN APPARTEMENT AVEC TERRASSE ET PARKING, AU CALME

141 000 €
Ref : 25 2511
A propos de ce bien

VENTE A PORT-VENDRES, proche de Collioure, et à 25mn de Perpignan

A quelques pas du vieux-Port et de son centre ville actif et dynamique, dans un immeuble récent, venez découvrir cet appartement 2 pièces. 40.3m² de surface habitable et 14m² de terrasse. Il se compose d' un espace cuisine-séjour donnant sur terrasse, une chambre, et une salle d'eau. Pour profiter de l'extérieur, vous disposerez d'une agréable terrasse ensoleillée de 14.00m². vue dégagée et au calme. L'immeuble a été édifié en 2018, le bâtiment est moderne. Cet appartement bénéficie d'un parking privé pour le véhicule. Actuellement loué : 475.41€+68€ = 543.41€ / mois. Locataire en place depuis le 22/02/2021 à jour de ses règlements. Locataire parfait pour un investissement ! Contactez l'agence et Vincent en particulier qui vous expliquera tout et fera visiter : 04 68 67 59 60 .

Ce bien immobilier est soumis au statut de la copropriété. Quote-part des charges de copropriété : 911euros /an. Consulter l'agence pour connaître les informations complètes relatives au syndicat de copropriété.

Port-Vendres, c’est une histoire maritime illustre, de l’antiquité à nos jours. Son port est au cœur de la ville. Seul port en eau profonde du Département, il est aujourd’hui port de plaisance, de pêche et de commerce, accueillant des yachts prestigieux et des bateaux de croisière dont les manœuvres offrent un spectacle unique au quotidien. Port-Vendres, c’est une richesse patrimoniale et architecturale, ajoutée à la beauté naturelle de ses plages et de ses criques. Port-Vendres, c’est un écrin où il fait bon vivre… Situé au sud du Sud de la France, entre Méditerranée et Pyrénées, aux portes de l'Espagne, vous découvrirez Port-Vendres, un port naturel typiquement Catalan. Un lieu touristique d'exception : des paysages splendides, des vignobles de Banyuls, des criques merveilleuses, des activités nautiques et subaquatiques feront la joie des vacanciers. Un moment de vie quotidien à ne surtout pas manquer : l'arrivée des bateaux de pêche et le débarquement des poissons pour la criée.

CASTING IMMOBILIER, Agence immobilière à Perpignan (66), pour l'achat, la vente, la location et la gestion de votre bien immobilier, 04 68 67 59 60.


Les informations sur les risques auxquels ce bien est exposé sont disponibles sur le site Géorisques
Descriptif de ce bien
Général
Code postal 66660
Surface loi Carrez (m²) 40 m²
Nombre de chambre(s) 1
Nombre de pièces 2
Etage 1
Nombre de niveaux 1
Ascenseur OUI
Vue dégagée sur jardin
Détails
Nb de salle de bains 1
Cuisine Américaine
Type de cuisine SEMI-EQUIPEE
Mode de chauffage Climatisation
Type de chauffage Air pulsé
Format de chauffage Individuel
Interphone OUI
Visiophone NON
Balcon NON
Terrasse OUI
Cave NON
Exposition Sud
Année de construction 2018
Financier
Prix de vente 141 000 €
Les honoraires d'agence seront intégralement à la charge du vendeur  
Taxe foncière annuelle 1 031 €
Energie
DPE GES
Autour du bien
  • Commerces et santé
  • Loisirs
  • Ecoles
  • Transports
  • Pratique
Contacter pour ce bien
L'agence
Téléphone 04 68 67 59 60
Adresse
53, avenue Jean Giraudoux 66000 Perpignan

* Champ obligatoire

Les informations recueillies sur ce formulaire sont enregistrées dans un fichier informatisé par La Boite Immo agissant comme Sous-traitant du traitement pour la gestion de la clientèle/prospects de l'Agence / du Réseau qui reste Responsable du Traitement de vos Données personnelles. La base légale du traitement repose sur l'intérêt légitime de l'Agence / du Réseau. Elles sont conservées jusqu'à demande de suppression et sont destinées à l'Agence / au Réseau. Conformément à la loi « informatique et libertés », vous disposez des droits d’accès, de rectification, d’effacement, d’opposition, de limitation et de portabilité de vos données. Vous pouvez retirer votre consentement à tout moment en contactant directement l’Agence / Le Réseau. Consultez le site https://cnil.fr/fr pour plus d’informations sur vos droits. Si vous estimez, après avoir contacté l'Agence / le Réseau, que vos droits « Informatique et Libertés » ne sont pas respectés, vous pouvez adresser une réclamation à la CNIL. Nous vous informons de l’existence de la liste d'opposition au démarchage téléphonique « Bloctel », sur laquelle vous pouvez vous inscrire ici : https://www.bloctel.gouv.fr Dans le cadre de la protection des Données personnelles, nous vous invitons à ne pas inscrire de Données sensibles dans le champ de saisie libre.
Ce site est protégé par reCAPTCHA, les Politiques de Confidentialité et les Conditions d'Utilisation de Google s'appliquent.

Découvrir nos outils